这是一套100平米的现代简约风格装修案例,整体空间以中性色调的氛围,在个性的棕色、绿茶色等空间的搭配下,把房子布置成一个充满个性与舒适气息的生活空间。
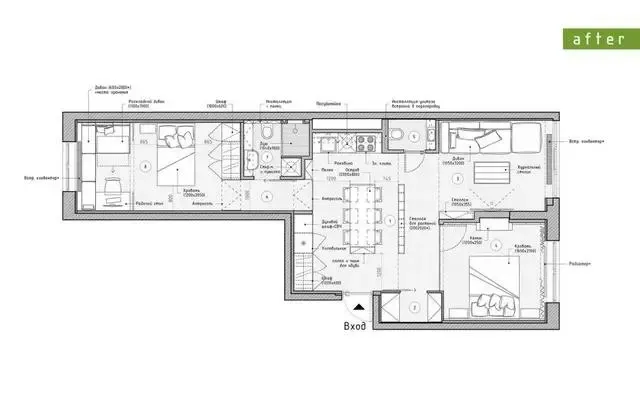
平面布置图

客厅

▲客厅天花以白色的木板吊平顶的设计,嵌入安装筒灯,整体客厅以暗系的色调设计,搭配木质感的电视墙,带来的是一种简素现代的自然舒适感。

▲电视墙是木饰面为主体的设计,右侧加入一个多层开放展示架,摆上书籍与绿植,增添了空间的清新与实用感,棕色地毯上布置金属+大理石质感的茶几,还有茶绿色的布艺沙发,简素的元素搭配,也为空间带来了雅致舒适的空间感。

▲沙发墙是茶叶色的墙面,墙脚以护墙板做出一个展示台的位置,布置上鲜艳的装饰画,顶上暗藏安装了灯带,结合绿茶色的布艺沙发,整个空间显得格外的简雅而舒适。
餐厅&厨房

▲餐厅布置上白色大理石台面的餐桌,餐台上方一排的吊灯,结合红色的布艺餐椅,餐厅与大门之间的木质屏风,整体空间显得时尚而又温情舒适。

▲餐厨区域的地面砖都是以回字形的花砖设计,结合墨绿色的橱柜,嵌入安装的电器,让做饭空间显得格外的端庄自然。
卧室

▲卧室床头墙是一整幅的鲜花图案墙布,温馨中性色,搭配灰色布艺床铺,让睡眠空间显得充满温情浪漫的气质感。

▲靠窗位置隔出了一个办公区,摆上简易的电脑桌与开放层板书架,还有舒适的布艺飘窗作为坐席,也让空间的利用更加灵活舒适。
次卧

▲次卧与餐厅之间以长虹玻璃推门隔开,结合窗帘设计,让次卧的采光可以与餐厨空间共享,使得空间利用更加灵活舒适。

▲次卧卧室床头墙以木饰面的基础,两边加入波纹板,中间挂上一幅素色的渐变挂画,还有淡绿色的布艺床,床头两侧的金属质感吊灯,都为空间增添了几分精致的华丽气息。

▲床尾以护墙板+壁炉造型的设计,摆上装饰画与花瓶布置,壁炉内红砖与烛台摆设,也让点亮了空间的端庄与档次气息。
卫生间

▲卫生间也是以回字形的花砖地面,结合白色工字砖墙面,还有茶绿色的定制洗手盆柜,空间的收纳丰富而又美观华丽,让卫浴生活也更加轻松自然。

▲壁挂式的马桶,后方墙面装了收纳柜,左侧是开放的壁龛,右侧是带柜门的收纳柜,整体空间利用非常的实用自然。